澳门百家乐官网-百家乐投注导航

 
教務處關于二期新建教學場地樓群編號的說明
發布人:  發布時間:2012-08-29   瀏覽次數:2527

各教學單位:
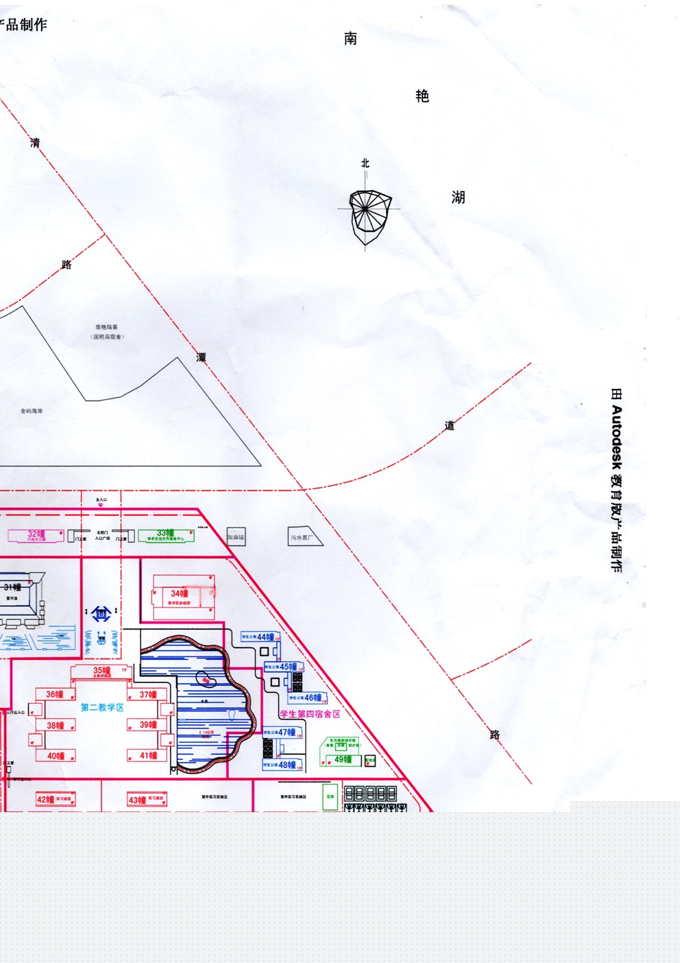
    根據學院統一安排,二期新建樓群已編號,現對主要教學場地作以下說明:
 

    一、 二期教學主樓(原排課系統中的27號樓)編為35號樓
    二、 二期計科系樓(原排課系統中的26號樓)編為36號樓
    三、 二期數理系樓(原排課系統中的25號樓)編為37號樓
    四、 二期電子系樓(原排課系統中的24號樓)編為38號樓
    五、 二期藝術系樓(原排課系統中的23號樓)編為39號樓
    六、 二期機械系樓(原排課系統中的22號樓)編為40號樓
    七、 二期建工系樓(原排課系統中的21號樓)編為41號樓
    八、 生化樓編為34號樓
    九、 實訓中心西樓編為42號樓
    教學場地的具體分布圖見附表,為保證新學期開學教學活動的順利進行,請各教學單位務必在開學前組織教師、學生熟悉教學場地。

 

    附件:1、二期樓宇分布圖.jpg

          2、二期教室平面布置圖1.doc


                                                          教務處
                                                      2012年8月29日

 
百家乐看| 百家乐高手qq| 百家乐赌场策略| 网上百家乐有假的吗| 属火的在属土的方向做生意好不好| 金三角百家乐官网的玩法技巧和规则 | 万载县| 百家乐官网园会员注册| 百家乐官网游戏平台架设| 信誉百家乐官网平台| 百家乐官网二十一点游戏| 百家乐官网秘诀| 百家乐官网怎么玩| 百家乐官网真人赌场娱乐网规则 | 做生意摆放的招财物件| 百家乐官网计划软件| 百家乐赌缆注码运用| 百家乐博赌城| 二八杠游戏下载| 云博备用网| 家百家乐官网破解软件| 百家乐官网赌博在线娱乐| 娱乐城百家乐官网的玩法技巧和规则 | 大发888在线注册| 平阳县| 澳门百家乐官网怎么看小路| 网址百家乐官网的玩法技巧和规则| 娱乐城百家乐规则| 网络百家乐会作假吗| 大发888游戏是真的么| 长寿区| 百家乐官网真人游戏娱乐平台| 百家乐系统分析器| 永利百家乐赌场娱乐网规则| 大发888娱乐吧| 真人百家乐官网软件博彩吧| 免水百家乐官网的玩法技巧和规则 | 大发888游戏平台客户端下载| 778棋牌游戏| 百家乐官网的打法技巧| 防伪百家乐官网筹码币套装|